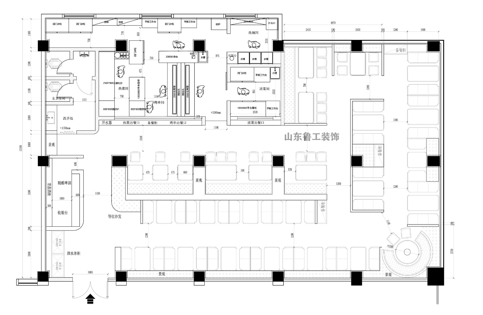
“霍師兄”燒烤店-山大路店
文章作者:山東魯工裝飾 上傳更新:2023/08/01
項(xiàng)目名稱(chēng):“霍師兄”燒烤
位置:濟(jì)南歷下區(qū)山大路85號(hào)
面積:500平
工期:40天
承建單位:山東魯工裝飾















濟(jì)南餐飲裝修
裝修報(bào)價(jià)咨詢
免費(fèi)熱線:
0531-58763069
0531-58763069
電話:0531-58763069

